Agents
Sold By
- Loading...
- Photos
- Description
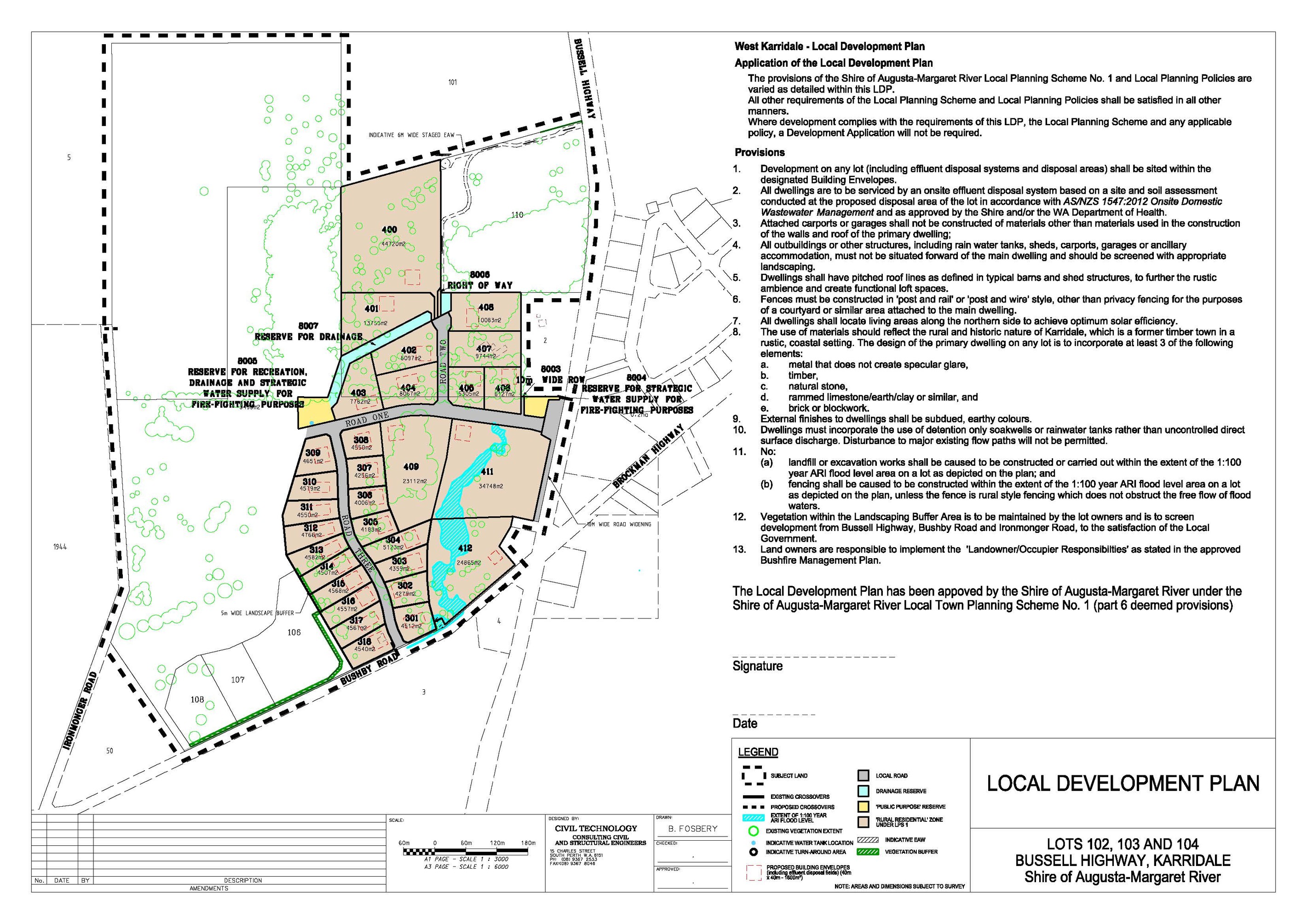
Land in Karridale
Stage 2 - Treescapes - Karridale
Reconnect with nature at Treescapes - Karridale, the newest subdivision on the west side of Bussell Highway, just 7.5kms from the pristine beach of Hamelin Bay, 29kms south of Margaret River and 14kms north of Augusta. Stage 2 includes 30 lifestyle lots varying in size from 4,512m² to 4.49ha all with superb rural vistas to the Leeuwin Naturaliste Ridge. Located close to an array of outstanding natural features of the south west this is an opportunity to reconnect with nature and become part of a culture that prides itself in lifestyle.
Share:
